噸包投料站在硫酸鎳生產工藝中的重要應用!
來源:振泰機械-平 更新時間:2024-04-19點擊:0 次
噸包投料站在硫酸鎳生產工藝中扮演著至關重要的角色。硫酸鎳作為一種重要的化工原料,廣泛應用于電池、電鍍、冶金等領域。在生產過程中,硫酸鎳噸包投料站的穩定性和效率直接關系到硫酸鎳生產的連續性和產品質量。因此,對硫酸鎳無塵噸袋拆包機的研究和優化具有重要意義。

硫酸鎳噸包投料站工作原理:
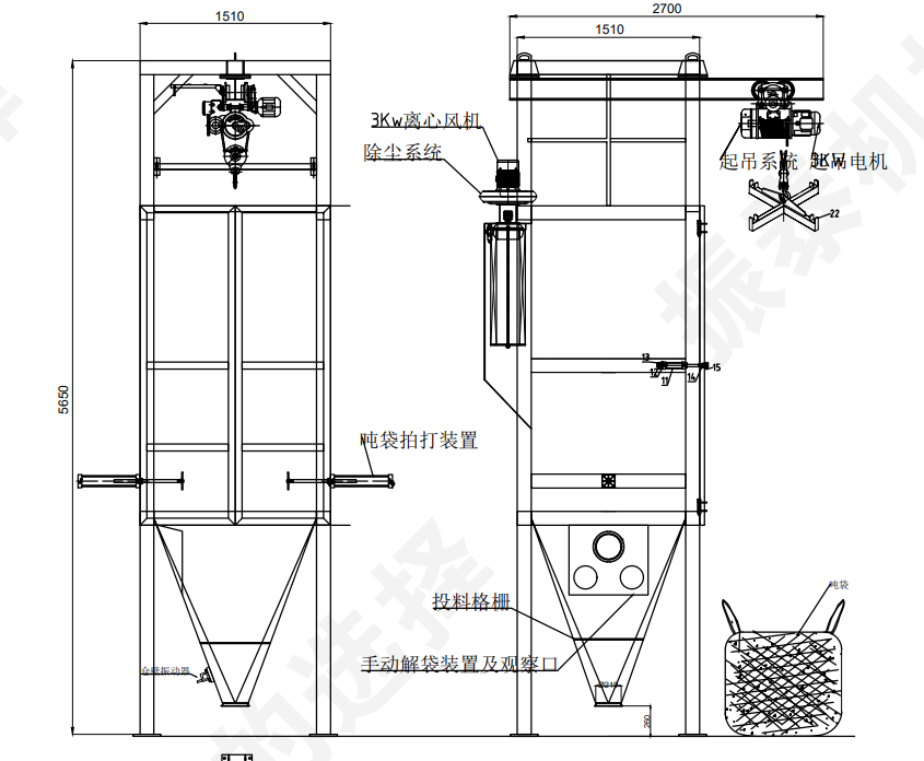
首先,硫酸鎳密閉噸包卸料機在硫酸鎳生產工藝中起到了關鍵作用。在生產線上,原料的投料是生產的第一步,也是最為關鍵的一步。投料站主要通過拆包機自身配置電動葫蘆,將物料吊裝到拆包機的機架上方,然后緩緩下落,物料袋在緩慢下落過程中由人工拆開下料口或者由十字割刀,將物料袋底部劃開,物料靠重力滑落,使噸袋內的粉粒狀物料靠重力落進貯斗中來完成卸料工作。


硫酸鎳噸包投料站功能特點:
1、拆袋速度快、效率高。
2、粉塵控制效果好。本設備采用全封閉結構,實現同步收塵,在投料站工作期間,肉眼看不到有粉塵外泄,工作環境指標達到國家勞動衛生標準要求。
3、倒袋后物料配套真空輸送或管鏈輸送機到制定儲料裝置(用料點)此外,噸包投料站在硫酸鎳生產工藝中還具有高度的靈活性和可適應性。在生產過程中,原料的種類、規格和投料量可能會因市場需求和產品調整而發生變化。硫酸鎳全自動投料裝置通過靈活的控制系統和模塊化設計,能夠迅速適應不同的生產需求和變化,確保生產過程的連續性和穩定性。


然而,噸包投料站在硫酸鎳生產工藝中也面臨著一些挑戰和問題。例如,原料的濕度、結塊等性質可能會對投料精度和穩定性造成影響。此外,投料站的設計、制造和安裝質量也會直接影響到其性能和使用壽命。因此,在噸包投料站的設計、制造和使用過程中,需要充分考慮原料特性、生產工藝要求和使用環境等因素,確保投料站的性能和穩定性。


總之,噸包投料站在硫酸鎳生產工藝中具有重要的應用價值。同時,噸包投料站還具有高度的靈活性和可適應性,能夠迅速適應不同的生產需求和變化。然而,在投料站的設計、制造和使用過程中,我們需要充分考慮原料特性、生產工藝要求和使用環境等因素,確保投料站的性能和穩定性。通過不斷的研究和優化,我們可以進一步提高噸包投料站在硫酸鎳生產工藝中的應用效果和價值。
轉載地址:http://m.tv968.cn/news/dbtlzzlsnscgyzdzyzy.html
標簽: 硫酸鎳噸包投料站 硫酸鎳無塵噸袋拆包機 硫酸鎳密閉噸包卸料機 震動篩 拆包機
- 上一篇:圓形振動篩在寵物食品行業領域的重要作用
- 下一篇:硫酸鎳真空輸送系統的優勢特點!
- ·噸包投料站 2025-02-18
- ·檸檬酸鎂臥式氣流篩 2024-11-21
- ·直線震動篩 2023-02-20
- ·直排式震動篩 2023-02-20
- ·高頻震動篩 2023-02-20
- ·超聲波振動篩 2023-02-20
- ·三次元振動篩 2023-02-20
- ·電池正負極材料震動篩 2022-08-31
- ·pp塑料振動篩 2022-03-02
- ·二層不銹鋼震動篩 2022-02-24
您可能還想了解的產品:
- ·硅藻泥粉體雙螺旋錐形混合機:技術創新與行業應用深度解析 2024-04-19
- ·從電動篩到氣動篩,看粘土氣動馬達振動篩如何破解篩分難題 2024-04-19
- ·如何利用三次元振動篩優化電池黑粉的篩分工藝? 2024-04-19
- ·如何選擇適合尿素輸送的真空上料機? 2024-04-19
- ·敞開式噸袋拆包機 vs 密閉式噸袋拆包機:核心區別與選型指南 2024-04-19
- ·真空上料機能輸送含水物料嗎?關鍵限制與替代方案解析 2024-04-19
- ·化工行業球狀物料分級篩分首選——氣動式振動篩 2024-04-19
- ·硅碳負極材料專用超聲波振動篩(內噴特氟龍)的技術優勢與應用價值 2024-04-19
- ·硅碳負極材料生產工藝與市場前景分析 2024-04-19
- ·吳江中藥浸膏高頻過濾篩制作完畢已發貨 2024-04-19
您可能還想查閱的文章:

















